Menu
Un projet réalisé par :Jérôme Brément  Architecte à Bagard

Villa S - le patio ouvert

 Bagard - 30
Jérôme Brément
Accueil Projets Villa S - le patio ouvert

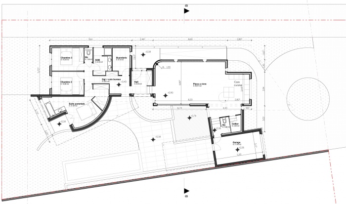
Maison de 150m², plain-pied , type patio ouvert.
Construction mixte brique/ossature bois
Toiture mixte toit-terrasse/tuile canal.
ÉTUDES EN COURS

Villa S - le patio ouvert

Ce projet fut un véritable défi d'insertion dans le site. En effet, le terrain est enclavé entre trois maisons, une départementale et une servitude de passage. Comment créer un lieu intime et à la fois ouvert sur un jardin avec piscine, tout en se protégeant de la vue du voisinage? le projet trouve sa solution dans sa disposition spatiale en forme de patio ouvert vers le seul point de fuite existant, au sud ouest. Une terrasse couverte sert de masque visuel avec la maison voisine. La façade Nord est la plus opaque pour des raisons thermiques mais également intimes. On y trouve l'entrée.
Ce projet tente de répondre également à la question des parcours, depuis le stationnement véhicule sous abri jusque dans son salon, des chambres jusqu’à la cuisine etc... Chaque parcours est travaillé pour mettre en valeur le potentiel des espaces extérieurs et les vues ciblées sur des micro-paysages (massifs plantés, transparences, points de fuites ..) Le traitement paysager est primordial et apporte une atmosphère de quiétude.
La mixité structurelle (brique, ossature bois, pierre) excite les sens en jouant sur les différences de matériaux et de couleurs. Enfin, la tuile canal se marie avec les toitures terrasses afin d'opérer une transition douce entre le traditionnel et le contemporain.

  • Villa S - le patio ouvert : image_projet_mini_49877

    vue de l'entrée

  • Villa S - le patio ouvert : IS jardin finale petite

    vue du jardin

  • Villa S - le patio ouvert : plan

    plan

Trouvez un architecte pour votre projet

Protection de vos données personnelles

Depuis toujours, architectes-france.com ne transfère aucune donnée personnelle à d'autres acteurs que ceux directement concernés par le projet (architectes, architectes d'intérieur...) et qui appartiennent à son réseau. Nos listes ne sont jamais transmises ou vendues à des partenaires extérieurs, même si ceux-ci appartiennent au domaine de la construction.
Toute modification dans ce domaine ne serait effectuée qu'avec votre consentement.

Je consens à ce que mes données personnelles soient collectées pour permettre à architectes-france de transférer votre projet aux architectes. Seul Architectes-france, ses équipes internes et la maitrise d'oeuvre concernée par le projet y ont accès. Aucune transmission de données à des tiers à l'exclusion de ceux décrits ci dessus n'est réalisée.

Mes données téléphoniques seront uniquement utilisées par Architectes-france.com et les architectes de notre réseau dans le cadre de la qualification et du suivi de mon projet.

Les données sont conservées pendant une durée de 18 mois courant à partir des derniers contacts effectifs entre architectes-france et vous ou architectes-france et un membre de la maitrise d'oeuvre en rapport avec ce projet et qui serait en relation avec architectes-france.

Conformément à la loi « informatique et libertés », vous pouvez exercer votre droit d'accès aux données vous concernant et les faire rectifier en contactant : Architectes-france, 23 avenue du Mirail - parc du Mirail - 33370 Artigues-près Bordeaux. Tél. 05.47.74.51.01 - contact@architectes-france.com

Trouvez un architecte pour votre projet

Protection de vos données personnelles

Depuis toujours, architectes-france.com ne transfère aucune donnée personnelle à d'autres acteurs que ceux directement concernés par le projet (architectes, architectes d'intérieur...) et qui appartiennent à son réseau. Nos listes ne sont jamais transmises ou vendues à des partenaires extérieurs, même si ceux-ci appartiennent au domaine de la construction.
Toute modification dans ce domaine ne serait effectuée qu'avec votre consentement.

Je consens à ce que mes données personnelles soient collectées pour permettre à architectes-france de transférer votre projet aux architectes. Seul Architectes-france, ses équipes internes et la maitrise d'oeuvre concernée par le projet y ont accès. Aucune transmission de données à des tiers à l'exclusion de ceux décrits ci dessus n'est réalisée.

Mes données téléphoniques seront uniquement utilisées par Architectes-france.com et les architectes de notre réseau dans le cadre de la qualification et du suivi de mon projet.

Les données sont conservées pendant une durée de 18 mois courant à partir des derniers contacts effectifs entre architectes-france et vous ou architectes-france et un membre de la maitrise d'oeuvre en rapport avec ce projet et qui serait en relation avec architectes-france.

Conformément à la loi « informatique et libertés », vous pouvez exercer votre droit d'accès aux données vous concernant et les faire rectifier en contactant : Architectes-france, 23 avenue du Mirail - parc du Mirail - 33370 Artigues-près Bordeaux. Tél. 05.47.74.51.01 - contact@architectes-france.com