
Villa NI : Construction neuve
Ce projet s’intéresse à la construction d'une maison individuelle sur une parcelle étroite, nécessitant une réflexion innovante pour optimiser l'espace disponible.
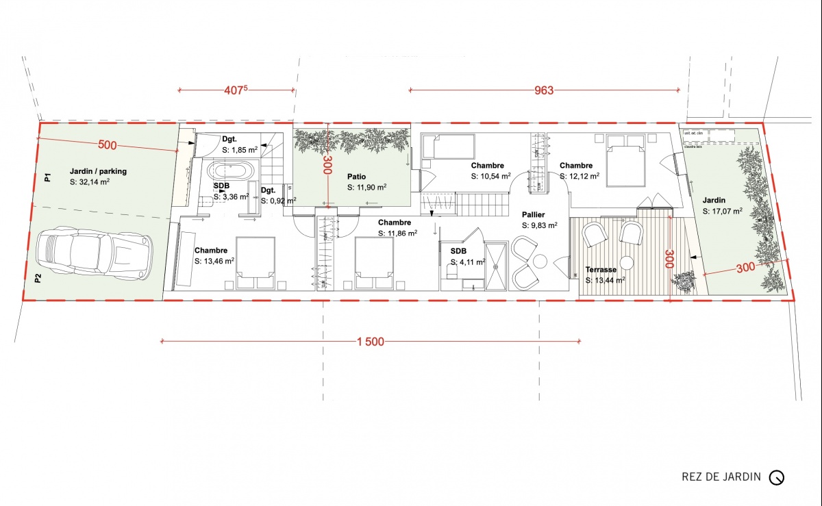
La maison est élaborée selon une trame composée de deux bandes longitudinales traversant la parcelle de part en part. L'une d'elles est délibérément coupée au centre, créant ainsi un patio qui infuse luminosité et fraîcheur au cœur des espaces intérieurs. Trois volumes distincts, s'étirant élégamment, confèrent à l'ensemble une atmosphère de "village".
En raison de contraintes réglementaires, le bâtiment et ses jardins sont partiellement encastrés dans le terrain (hauteur maximale de 4 mètres aux limites mitoyennes). L'accès à la maison s'effectue depuis la façade sud. Une entrée majestueuse, marquée par un volume en double hauteur, conduit vers la suite parentale en contrebas et une vaste pièce à vivre nichée sous les toits.
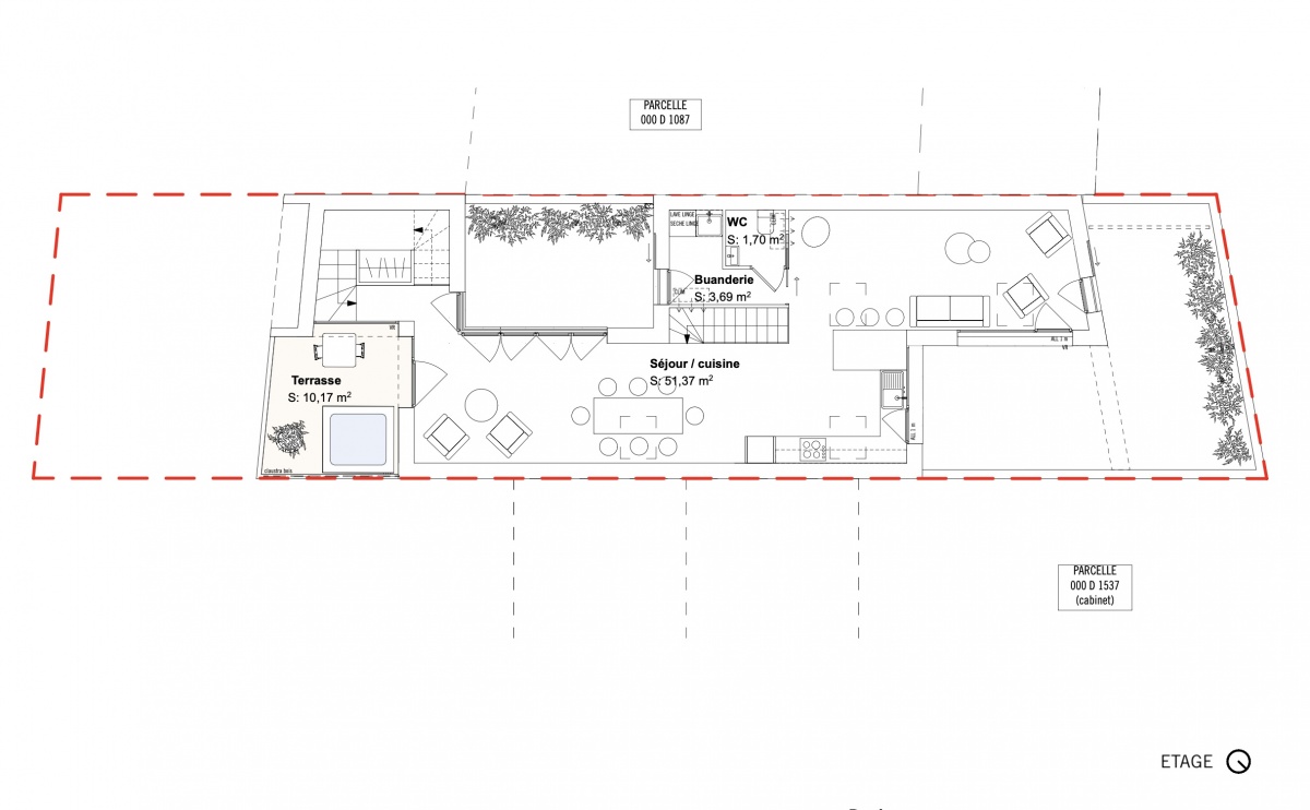
Les espaces de vie, situés à l'étage, sont pensés pour être lumineux et ouverts sur l'extérieur grâce à de généreuses baies vitrées dimensionnées sur la base du nombre d’or. En contraste, les chambres, placées au rez-de-jardin, sont conçues comme des retraites intimes, chacune bénéficiant d'un accès privilégié aux jardins. Cette approche assure une expérience équilibrée entre convivialité et intimité, tout en célébrant la symbiose entre architecture contemporaine et environnement naturel.
La parcelle est située au pied d'une colline, exposée à des risques d'inondations périodiques. Ainsi, une stratégie novatrice a été élaborée pour relever ces défis environnementaux. Durant les périodes de pluie, les jardins en contrebas ont été aménagés avec soin pour permettre une inondation contrôlée, préservant ainsi les espaces intérieurs de la maison. De plus, toutes les ouvertures ont été positionnées à une hauteur minimale de 30 cm du sol, assurant une protection accrue contre les infiltrations d'eau. Cette approche prévoyante garantit une résilience face aux conditions climatiques tout en maintenant le confort et l'intégrité de l'environnement intérieur.
-
-
VUE SUD
-
PLAN REZ DE JARDIN
-
PLAN ETAGE
-
PLAN TOITURE
-
COUPE TRANSVERSALE
-
COUPE LONGITUDIANLE
-
-
PATIO
-
JARDIN
-
SALON
-
SALLE A MANGER
-
CUISINE
-
CUISINE / SALON
-
SUITE PARENTALE
-
SALLE A MANGER
-
CUISINE
-
ESCALIER ACCES AUX CHAMBRES
VUE NORD