Un projet réalisé par :Jérôme Brément

Villa B
Jérôme Brément
Construction d'une habitation contemporaine en R+1 sur terrain à faible pente
Architecture contemporaine de par ses formes et ses ouvertures. L’objectif étant d’éviter la profusion des formes et de concevoir un ensemble simple et esthétique. Deux teintes d’enduit renforcent le jeu d’imbrication de volumes (pierre clair et terre) en harmonie avec l’environnement.
-
-
Façades
-
Plan du RDC
-
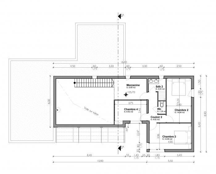
Plan de l'étage
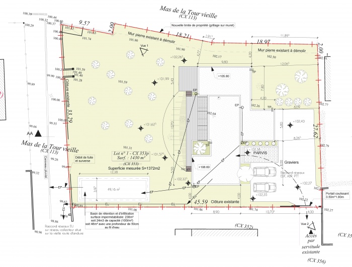
Plan de masse