Menu
Un projet réalisé par :Christophe Monge  Architecte à Marseille

Rénovation d'un 3 fenêtres marseillais

 Marseille - 13
Christophe Monge
Accueil Projets Rénovation d'un 3 fenêtres marseillais

PROJET : Rénovation / restructuration d'un appartement

Superficie : 100 m2 / "3 fenêtres marseillais"
Budget : 55 000 € HT
Clients : Privé / une famille de 4 personnes dont 2 enfants en bas âge

- Les espaces jour et nuit ont été permutés.
- Au centre, les pièces humides et espaces servants ont été regroupés.
- De part et d'autre en façades, les larges pièces de vie ont été conservées le plus possible en l'état mais ouvertes les unes sur les autres.

Au Nord, la cuisine a donné place à la chambre des parents qui est précédée d'un espace dressing, gagné sur un dégagement et le wc. A côté, l'ancien salon, aujourd'hui salle de jeux, s'est largement ouvert sur une pièce en second jour: le dortoir. Cet espace s'ouvre et se referme au moyen de portes vitrées coulissantes tandis que des panneaux pleins permettent de le diviser en deux lorsque les enfants veulent s'isoler.

Au Sud, les deux pièces ont été réunies en un vaste salon / séjour réunissant d'un regard les trois fenêtres. Les deux espaces unifiés se distinguent dans leur fonction par l'intermédiaire des deux niches qui les animent. D'un côté, une bibliothèque, et de l'autre la cuisine gagnée sur une pièce autrefois éclairée en second jour par un petit puit de lumière.

Rénovation d'un 3 fenêtres marseillais

NOTE D'INTENTION :

Les clients souhaitaient transformer totalement l'intérieur d'un 3 fenêtres marseillais typique de 100 m2 : inversion des espaces jours et nuits, suppression d'une chambre pour créer un vaste salon s'ouvrant sur l'ensemble des fenêtres de la façade mais volonté de préserver des zone d'intimité pour les enfants et de respecter les volumes de l'appartement.
La ligne conductrice a été de préserver les hauts volumes moulurés de l'appartement - resté dans son "jus"- en distinguant les nouvelles interventions. De faire mieux circuler la lumière en ouvrant les volumes entre eux et notamment les espaces centraux autrefois éclairés en second jour sur un petit puit de lumière. Mais également de proposer une polyvalence et une évolutivité des espaces afin d'éviter de partitionner d'un côté après avoir décloisonné de l'autre. Notamment, au lieu de recréer deux chambres d'enfant, il a été décidé de préserver l'ancien salon, transformé en une grande salle de jeux complétée d'un dortoir divisible en deux.
Ainsi, les pièces d'origine ont été conservées mais s'ouvrent et s'agrandissent sur des niches et espaces contigus qui se démarquent par une couleur et / ou une hauteur différente. La chambre des parents est précédée d'un espace dressing. La salle de jeux se connecte par l'intermédiaire de parois coulissantes sur le dortoir. Le salon est animé par la niche de la bibliothèque qui entre en écho avec celle de la cuisine plus largement ouverte sur la salle à manger.

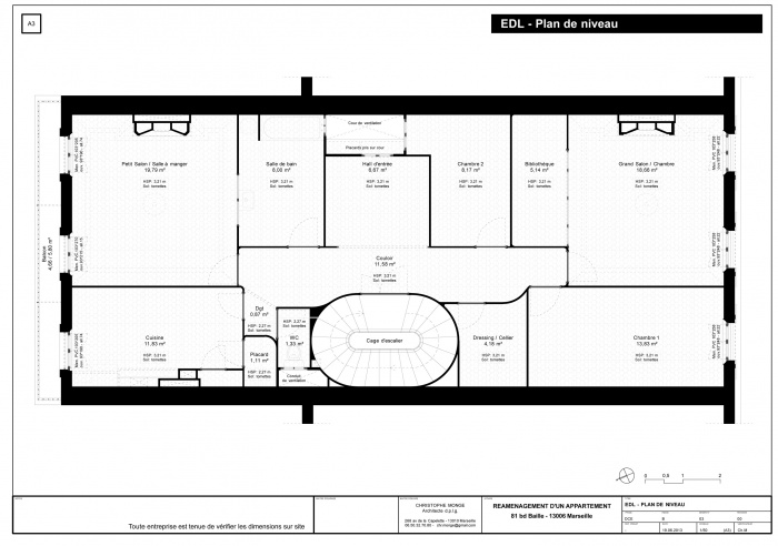
  • Rénovation d'un 3 fenêtres marseillais : Plan existant

    DOSSIER TECHNIQUE : Plan de l'existant
    (état des lieux réalisé par architecte)

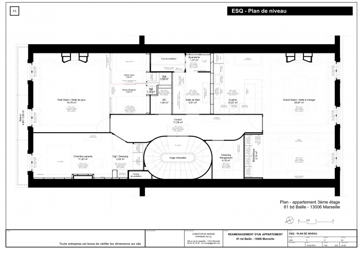
  • Rénovation d'un 3 fenêtres marseillais : Plan projet

    DOSSIER TECHNIQUE : Plan du projet réalisé
    (validé en esquisse (ESQ) / précisé pour appel d'offre (DCE) / adapté avec entreprises sur chantier (DET / EXE))

  • Rénovation d'un 3 fenêtres marseillais : Exemple de coupe et détail du dossier

    DOSSIER TECHNIQUE : Exemple de coupe et détail du dossier
    (détails des menuiseries coulissantes du dortoir)

  • Rénovation d'un 3 fenêtres marseillais : Salon/salle à manger: photo après suppression de cloisons

    SALON / SEJOUR : photo d'ensemble après suppression de cloisons

  • Rénovation d'un 3 fenêtres marseillais : image_projet_mini_68298

    SALON / SEJOUR : photo des niches de la bibliothèque et de la cuisine

  • Rénovation d'un 3 fenêtres marseillais : Salon/salle à manger: photo de cuisine ouverte sur l'espace repas

    SALON / SEJOUR : photo de la cuisine ouverte sur l'espace repas
    (table réalisée avec piètement métal soudé et le même bois que le plan de travail de la cuisine)

  • Rénovation d'un 3 fenêtres marseillais : Salon/salle à manger: photo de la cuisine équipée

    SALON / SEJOUR : photo de la cuisine équipée

  • Rénovation d'un 3 fenêtres marseillais : Salon/salle à manger: image de synthèse

    SALON / SEJOUR : image de synthèse des deux chambres réunies en un vaste salon / séjour

  • Rénovation d'un 3 fenêtres marseillais : EDL-Int salon N_2

    SALON / SEJOUR : image de synthèse de l'ancienne chambre / bureau

  • Rénovation d'un 3 fenêtres marseillais : IMG_7489 copie

    CHAMBRE DES ENFANTS : photo de la salle de jeux (clim intégrée dans cheminée)

  • Rénovation d'un 3 fenêtres marseillais : Chambre / Dortoir - 01

    CHAMBRE DES ENFANTS : photo du dortoir s'ouvrant sur la pièce principale transformée en salle de jeux

  • Rénovation d'un 3 fenêtres marseillais : IMG_7496.JPG

    CHAMBRE DES ENFANTS : photo du dortoir séparé en deux par parois coulissantes pleines

  • Rénovation d'un 3 fenêtres marseillais : IMG_7497.JPG

    CHAMBRE DES ENFANTS : photo du dortoir toutes parois coulissantes tirées

  • Rénovation d'un 3 fenêtres marseillais : IMG_7498 copie

    CHAMBRE DES ENFANTS : photo d'une niche du dortoir

  • Rénovation d'un 3 fenêtres marseillais : Int pt salon S_enfant

    CHAMBRE DES ENFANTS : image de synthèse depuis la salle de jeux

  • Rénovation d'un 3 fenêtres marseillais : EDL-Int pt salon S_enfant

    CHAMBRE DES ENFANTS : image de synthèse de la pièce à l'origine

  • Rénovation d'un 3 fenêtres marseillais : Int ch 2 N_1

    CHAMBRE DES ENFANTS : image de synthèse depuis le dortoir

  • Rénovation d'un 3 fenêtres marseillais : IMG_7503 copie

    CHAMBRE DES PARENTS : photo du dressing d'entrée

  • Rénovation d'un 3 fenêtres marseillais : IMG_7502 copie

    Chambre des parents: photo du coin bureau

  • Rénovation d'un 3 fenêtres marseillais : Int cuisine S

    Chambre des parents: image de synthèse vers le dressing

  • Rénovation d'un 3 fenêtres marseillais : Int cuisine N_1

    CHAMBRE DES PARENTS : image de synthèse vers la fenêtre

  • Rénovation d'un 3 fenêtres marseillais : image_projet_mini_67142

    CHAMBRE DES PARENTS : image de synthèse de l'état original (cuisine)

Trouvez un architecte pour votre projet

Protection de vos données personnelles

Depuis toujours, architectes-france.com ne transfère aucune donnée personnelle à d'autres acteurs que ceux directement concernés par le projet (architectes, architectes d'intérieur...) et qui appartiennent à son réseau. Nos listes ne sont jamais transmises ou vendues à des partenaires extérieurs, même si ceux-ci appartiennent au domaine de la construction.
Toute modification dans ce domaine ne serait effectuée qu'avec votre consentement.

Je consens à ce que mes données personnelles soient collectées pour permettre à architectes-france de transférer votre projet aux architectes. Seul Architectes-france, ses équipes internes et la maitrise d'oeuvre concernée par le projet y ont accès. Aucune transmission de données à des tiers à l'exclusion de ceux décrits ci dessus n'est réalisée.

Mes données téléphoniques seront uniquement utilisées par Architectes-france.com et les architectes de notre réseau dans le cadre de la qualification et du suivi de mon projet.

Les données sont conservées pendant une durée de 18 mois courant à partir des derniers contacts effectifs entre architectes-france et vous ou architectes-france et un membre de la maitrise d'oeuvre en rapport avec ce projet et qui serait en relation avec architectes-france.

Conformément à la loi « informatique et libertés », vous pouvez exercer votre droit d'accès aux données vous concernant et les faire rectifier en contactant : Architectes-france, 23 avenue du Mirail - parc du Mirail - 33370 Artigues-près Bordeaux. Tél. 05.47.74.51.01 - contact@architectes-france.com

Trouvez un architecte pour votre projet

Protection de vos données personnelles

Depuis toujours, architectes-france.com ne transfère aucune donnée personnelle à d'autres acteurs que ceux directement concernés par le projet (architectes, architectes d'intérieur...) et qui appartiennent à son réseau. Nos listes ne sont jamais transmises ou vendues à des partenaires extérieurs, même si ceux-ci appartiennent au domaine de la construction.
Toute modification dans ce domaine ne serait effectuée qu'avec votre consentement.

Je consens à ce que mes données personnelles soient collectées pour permettre à architectes-france de transférer votre projet aux architectes. Seul Architectes-france, ses équipes internes et la maitrise d'oeuvre concernée par le projet y ont accès. Aucune transmission de données à des tiers à l'exclusion de ceux décrits ci dessus n'est réalisée.

Mes données téléphoniques seront uniquement utilisées par Architectes-france.com et les architectes de notre réseau dans le cadre de la qualification et du suivi de mon projet.

Les données sont conservées pendant une durée de 18 mois courant à partir des derniers contacts effectifs entre architectes-france et vous ou architectes-france et un membre de la maitrise d'oeuvre en rapport avec ce projet et qui serait en relation avec architectes-france.

Conformément à la loi « informatique et libertés », vous pouvez exercer votre droit d'accès aux données vous concernant et les faire rectifier en contactant : Architectes-france, 23 avenue du Mirail - parc du Mirail - 33370 Artigues-près Bordeaux. Tél. 05.47.74.51.01 - contact@architectes-france.com