Un projet réalisé par :Clémence MURAT - ATELIER MURAT ARCHITECTURE
Architecte à Paris

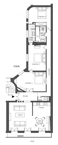
Réhabilitation totale d'un appartement haussmannien à Paris 9
Paris - 75
Clémence MURAT - ATELIER MURAT ARCHITECTURE
Réhabilitation totale d'un appartement haussmannien. Réaménagement des chambres et modification de l'emplacement des pièces d'eau et de la cuisine. Restauration des sols et des moulures.
-
-
Cuisine, salle à manger
-
Salle de bains
-
une des chambres
-
Salle d'eau
-
Enfilade des chambres
-
Plan du projet
Séjour