
Maison TR : Architecture Intérieure
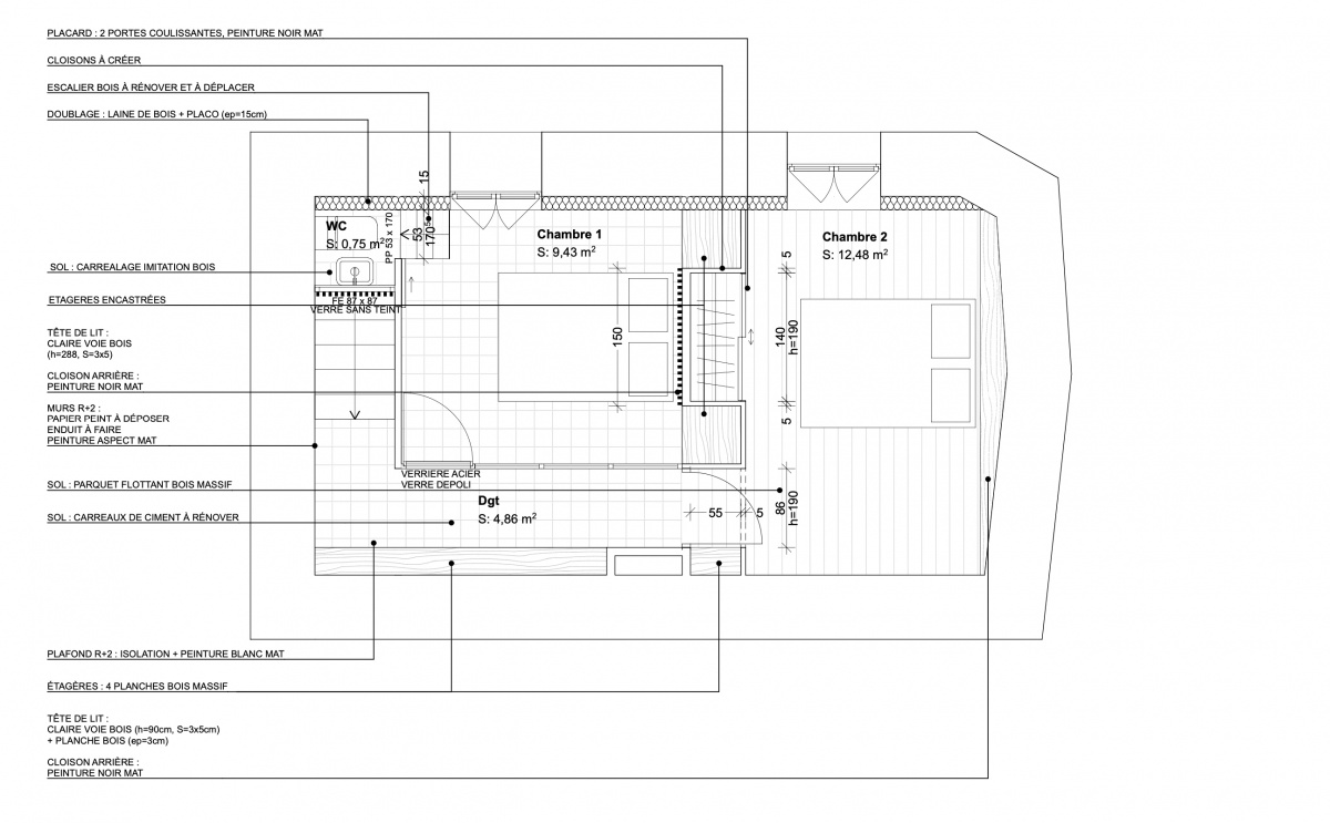
Il s'agit de la rénovation intérieure du dernier étage l'étage d'une maison de village construite en pierre. À l'origine, l'étage comprenait deux chambres en enfilade.
Le projet consiste essentiellement à rendre la seconde indépendante. Ainsi, une verrière toute hauteur en verre dépoli crée une coursive éclairée naturellement.
Afin de pallier au manque de rangements, une série d'étagères adossée au conduit de cheminée est installée dans la coursive. Tandis que dans les chambres, une double cloison est créée afin d'y accueillir des étagères encastrées dans la première et un grand placard dans la deuxième.
Dans la chambre 1, une tête de lit fabriquée à partir d'un bardage à claire-voie, sur toute la hauteur ajoute un "dynamisme vertical". Dans la chambre 2, un "caisson" bardé en claire-voie s'implante sur toute la largeur de la pièce et fait office de tête de lit.
Afin de donner, un aspect paisible et accueillant à cet espace nuit, le choix de matérialité s’est porté sur une dominante de blanc, contrasté par des touches de vert pastel et de bois.
-
-
CHAMBRE 2
-
COURSIVE
-
CHAMBRE 1
-
CHAMBRE 2
-
PLAN
-
PENDANT LES TRAVAUX
-
ETAT EXISTANT
AXONOMETRIE