Menu
Un projet réalisé par :Benoît LLOZE - B2L ARCHITECTES  Architecte à Bellecombe-Tarendol

Maison de vacances béton et ossature bois

 Bellecombe-Tarendol - 26
Benoît LLOZE - B2L ARCHITECTES
Accueil Projets Maison de vacances béton et ossature bois

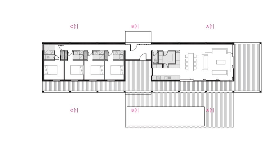
Situé au cœur d’un petit hameau de la Drôme provençale, le projet porte sur la construction d’une maison de vacances qui pourra accueillir une douzaine de personnes.

Le terrain en pente et orienté plein Sud dispose d’une vue panoramique exceptionnelle sur le paysage lointain et sur le mont Ventoux situé pourtant à plus de 50 km du site. Implanté au Nord de la parcelle et ouvert totalement sur le paysage lointain et la lumière du Sud, le projet a été conçu de manière à ce que le niveau de la toiture ne dépasse pas celui de la rue. Bien que son architecture se démarque de celle des constructions voisines, l’intégration de la maison dans la pente et au niveau du paysage a été un objectif majeur. La typologie choisie de la longère se réfère à la volumétrie des hangars présents dans cette région agricole. Cette référence nous a conduit à concevoir une structure porteuse hyper-rationnelle. Mis au point avec les ingénieurs structure, une succession de neuf portiques en béton définissent et recouvrent l’ensemble des espaces habitables, intérieurs et extérieurs. Orientés Sud et positionnés en retrait par rapport à la structure porteuse, chaque espace de la maison dispose de sa propre extension vers l’extérieur. En plus de définir un espace de transition entre l’intérieur et l’extérieur de la maison, ces terrasses recouvertes d’une treille en bois forment un dispositif de protection solaire. Vus depuis l’intérieur les portiques en béton forment les cadres des tableaux exposant le paysage d’une nature animée. Ce projet a été publié sur plusieurs sites d’architecture dont: Divisare, ArchDaily.
Le projet a été réalisé en association avec Acau architectes.

Maison de vacances béton et ossature bois
  • Maison de vacances béton et ossature bois : image_projet_mini_98820
  • Maison de vacances béton et ossature bois : Facade Est
  • Maison de vacances béton et ossature bois : facade sud
  • Maison de vacances béton et ossature bois : Vue depuis l'entrée
  • Maison de vacances béton et ossature bois : Vue depuis le salon
  • Maison de vacances béton et ossature bois : Terrasse Est
  • Maison de vacances béton et ossature bois : Terrasse Est
  • Maison de vacances béton et ossature bois : piscine
  • Maison de vacances béton et ossature bois : Coursive
  • Maison de vacances béton et ossature bois : Plan_Bellecombe_1
  • Maison de vacances béton et ossature bois : Plan_Bellecombe_3

Trouvez un architecte pour votre projet

Protection de vos données personnelles

Depuis toujours, architectes-france.com ne transfère aucune donnée personnelle à d'autres acteurs que ceux directement concernés par le projet (architectes, architectes d'intérieur...) et qui appartiennent à son réseau. Nos listes ne sont jamais transmises ou vendues à des partenaires extérieurs, même si ceux-ci appartiennent au domaine de la construction.
Toute modification dans ce domaine ne serait effectuée qu'avec votre consentement.

Je consens à ce que mes données personnelles soient collectées pour permettre à architectes-france de transférer votre projet aux architectes. Seul Architectes-france, ses équipes internes et la maitrise d'oeuvre concernée par le projet y ont accès. Aucune transmission de données à des tiers à l'exclusion de ceux décrits ci dessus n'est réalisée.

Mes données téléphoniques seront uniquement utilisées par Architectes-france.com et les architectes de notre réseau dans le cadre de la qualification et du suivi de mon projet.

Les données sont conservées pendant une durée de 18 mois courant à partir des derniers contacts effectifs entre architectes-france et vous ou architectes-france et un membre de la maitrise d'oeuvre en rapport avec ce projet et qui serait en relation avec architectes-france.

Conformément à la loi « informatique et libertés », vous pouvez exercer votre droit d'accès aux données vous concernant et les faire rectifier en contactant : Architectes-france, 23 avenue du Mirail - parc du Mirail - 33370 Artigues-près Bordeaux. Tél. 05.47.74.51.01 - contact@architectes-france.com

Trouvez un architecte pour votre projet

Protection de vos données personnelles

Depuis toujours, architectes-france.com ne transfère aucune donnée personnelle à d'autres acteurs que ceux directement concernés par le projet (architectes, architectes d'intérieur...) et qui appartiennent à son réseau. Nos listes ne sont jamais transmises ou vendues à des partenaires extérieurs, même si ceux-ci appartiennent au domaine de la construction.
Toute modification dans ce domaine ne serait effectuée qu'avec votre consentement.

Je consens à ce que mes données personnelles soient collectées pour permettre à architectes-france de transférer votre projet aux architectes. Seul Architectes-france, ses équipes internes et la maitrise d'oeuvre concernée par le projet y ont accès. Aucune transmission de données à des tiers à l'exclusion de ceux décrits ci dessus n'est réalisée.

Mes données téléphoniques seront uniquement utilisées par Architectes-france.com et les architectes de notre réseau dans le cadre de la qualification et du suivi de mon projet.

Les données sont conservées pendant une durée de 18 mois courant à partir des derniers contacts effectifs entre architectes-france et vous ou architectes-france et un membre de la maitrise d'oeuvre en rapport avec ce projet et qui serait en relation avec architectes-france.

Conformément à la loi « informatique et libertés », vous pouvez exercer votre droit d'accès aux données vous concernant et les faire rectifier en contactant : Architectes-france, 23 avenue du Mirail - parc du Mirail - 33370 Artigues-près Bordeaux. Tél. 05.47.74.51.01 - contact@architectes-france.com