Menu
Un projet réalisé par :Jérôme JACQMIN ARCHITECTE

l'entre des vitrages

Jérôme JACQMIN ARCHITECTE
Accueil Projets l'entre des vitrages

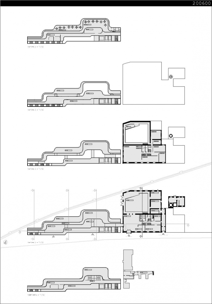
nature : concours pour la création du musée Kantor
surface : 3.700 m2
budget : -
étude : 2007
distinction : prix d'honneur (en collaboration avec Philippe Rahm architecte)

l'entre des vitrages

Ce projet pour un musée en Pologne est littéralement une augmentation de l’épaisseur du petit espacement de quelques millimètres entre les verres d’une fenêtre à double ou triple vitrage, jusqu’à en faire un espace habitable, de quelques mètres. À la manière précise des fenêtres contemporaines qui additionnent les couches de verres (verre simple / verre double / verre triples) pour en améliorer l’isolation en diminuant le coefficient de transmission thermique k (W/m2.K) (verre simple : k =5,6 / verre double : k = 3/ verre tripes : k = 2), notre projet additionne les strates, pour améliorer progressivement le coefficient thermique, de couche en couche, offrant ainsi une variété de températures et de luminosités. Contre l’homogénéité du climat moderne, nous proposons une diversité d’atmosphères, de lumière et de températures ouvertes à la transhumance. Selon le type d’activité, selon la saison, nous choisirons une couche plutôt qu’une autre, plus chaude ou plus au nord, plus constante dans sa température ou plus lumineuse. L’architecture trouve ici, dans son langage même, celui, invisible de la lumière et de la température, et dans les nécessités énergétiques liées au développement durable, les moyens de faire surgir des espaces interprétables, extraordinaires, librement ouverts aux comportements et aux fonctions à venir.

  • l'entre des vitrages : 3
  • l'entre des vitrages : 2
  • l'entre des vitrages : 3
  • l'entre des vitrages : 4
  • l'entre des vitrages : 5
  • l'entre des vitrages : 7

Trouvez un architecte pour votre projet

Protection de vos données personnelles

Depuis toujours, architectes-france.com ne transfère aucune donnée personnelle à d'autres acteurs que ceux directement concernés par le projet (architectes, architectes d'intérieur...) et qui appartiennent à son réseau. Nos listes ne sont jamais transmises ou vendues à des partenaires extérieurs, même si ceux-ci appartiennent au domaine de la construction.
Toute modification dans ce domaine ne serait effectuée qu'avec votre consentement.

Je consens à ce que mes données personnelles soient collectées pour permettre à architectes-france de transférer votre projet aux architectes. Seul Architectes-france, ses équipes internes et la maitrise d'oeuvre concernée par le projet y ont accès. Aucune transmission de données à des tiers à l'exclusion de ceux décrits ci dessus n'est réalisée.

Mes données téléphoniques seront uniquement utilisées par Architectes-france.com et les architectes de notre réseau dans le cadre de la qualification et du suivi de mon projet.

Les données sont conservées pendant une durée de 18 mois courant à partir des derniers contacts effectifs entre architectes-france et vous ou architectes-france et un membre de la maitrise d'oeuvre en rapport avec ce projet et qui serait en relation avec architectes-france.

Conformément à la loi « informatique et libertés », vous pouvez exercer votre droit d'accès aux données vous concernant et les faire rectifier en contactant : Architectes-france, 23 avenue du Mirail - parc du Mirail - 33370 Artigues-près Bordeaux. Tél. 05.47.74.51.01 - contact@architectes-france.com

Trouvez un architecte pour votre projet

Protection de vos données personnelles

Depuis toujours, architectes-france.com ne transfère aucune donnée personnelle à d'autres acteurs que ceux directement concernés par le projet (architectes, architectes d'intérieur...) et qui appartiennent à son réseau. Nos listes ne sont jamais transmises ou vendues à des partenaires extérieurs, même si ceux-ci appartiennent au domaine de la construction.
Toute modification dans ce domaine ne serait effectuée qu'avec votre consentement.

Je consens à ce que mes données personnelles soient collectées pour permettre à architectes-france de transférer votre projet aux architectes. Seul Architectes-france, ses équipes internes et la maitrise d'oeuvre concernée par le projet y ont accès. Aucune transmission de données à des tiers à l'exclusion de ceux décrits ci dessus n'est réalisée.

Mes données téléphoniques seront uniquement utilisées par Architectes-france.com et les architectes de notre réseau dans le cadre de la qualification et du suivi de mon projet.

Les données sont conservées pendant une durée de 18 mois courant à partir des derniers contacts effectifs entre architectes-france et vous ou architectes-france et un membre de la maitrise d'oeuvre en rapport avec ce projet et qui serait en relation avec architectes-france.

Conformément à la loi « informatique et libertés », vous pouvez exercer votre droit d'accès aux données vous concernant et les faire rectifier en contactant : Architectes-france, 23 avenue du Mirail - parc du Mirail - 33370 Artigues-près Bordeaux. Tél. 05.47.74.51.01 - contact@architectes-france.com