Menu
Un projet réalisé par :Jeremy Azzaro  Architecte à Mallemort

Création d'une Maison Contemporaine

 Mallemort - 13
Jeremy Azzaro
Accueil Projets Création d'une Maison Contemporaine

Création d'une Maison Contemporaine à proximité d'un centre équestre
Mission Esquisse-Etude

Création d'une Maison Contemporaine

COMPOSITION ARCHITECTURALE
- Cette composition s’inscrit dans un registre clairement contemporain aux travers d’une articulation entre plusieurs volumes linéaires,
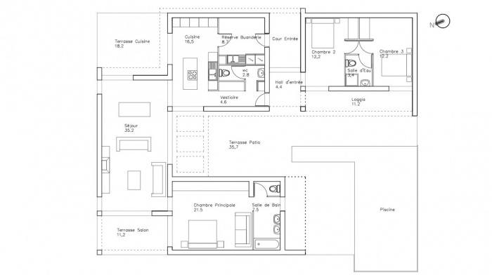
- Trois volumes abritent trois fonctions distinctes de l’habitation : un espace jour, une suite principale, et un deuxième espace nuit indépendant dit « de réception»
- Cette construction laisse clairement transparaître son système constructif avec un des éléments porteurs en béton (murs porteurs et planchers) et un remplissage en bois (murs isolants avec bardage à claire-vie)

PAYSAGE
- L’implantation, l’orientation et le volume tirent au mieux partie du terrain sur lequel le projet s’implante, en tenant compte de la course du soleil ici sans obstacle, les vents dominants de cette plaine, le cadrage des vues vers ces grands panoramas
- La forme s’efforce de s’intégrer au mieux au paysage, avec un volume en un seul niveau linéaire et épuré de même que les matériaux utilisés, bruts et naturels

DEVELOPPEMENT DURABLE
- Les ouvertures au Sud sont exploitées au mieux pour permettre l’apport de chaleur et lumière naturelle. Cependant les grandes baies sont protégées soit par des ombres générées par la volumétrie (ombres portées) soit par des brise soleil (prolongement du bardage à lames de bois)
- De plus petits percements sont également présents au Nord pour générer une circulation d’air Nord/Sud, et assurer un rafraîchissement naturel l’été.
- La toiture terrasse est vouée à être végtalisée pour réduire l’impact environnemental et les eaux de pluie récupérées

ESPACES EXTERIEURS
- Absolument toutes les pièces de la maison s’ouvrent généreusement sur l’extérieur au travers d’une loggia, d’une terrasse ou encore directement dans le jardin permettant de prolonger très aisément l’espace sur l’extérieur
- Ces espaces extérieurs abrités sont également les articulations entre les différents volumes atténuant la limite entre l’intérieur et l’extérieur.

  • Création d'une Maison Contemporaine : image_projet_mini_77106
  • Création d'une Maison Contemporaine : maison-contemoraine-planmasse-jeremy-azzaro-architecte-paca
  • Création d'une Maison Contemporaine : maison-contemoraine-plan-jeremy-azzaro-architecte-paca
  • Création d'une Maison Contemporaine : maison-contemoraine-elevations-jeremy-azzaro-architecte-paca

Trouvez un architecte pour votre projet

Protection de vos données personnelles

Depuis toujours, architectes-france.com ne transfère aucune donnée personnelle à d'autres acteurs que ceux directement concernés par le projet (architectes, architectes d'intérieur...) et qui appartiennent à son réseau. Nos listes ne sont jamais transmises ou vendues à des partenaires extérieurs, même si ceux-ci appartiennent au domaine de la construction.
Toute modification dans ce domaine ne serait effectuée qu'avec votre consentement.

Je consens à ce que mes données personnelles soient collectées pour permettre à architectes-france de transférer votre projet aux architectes. Seul Architectes-france, ses équipes internes et la maitrise d'oeuvre concernée par le projet y ont accès. Aucune transmission de données à des tiers à l'exclusion de ceux décrits ci dessus n'est réalisée.

Mes données téléphoniques seront uniquement utilisées par Architectes-france.com et les architectes de notre réseau dans le cadre de la qualification et du suivi de mon projet.

Les données sont conservées pendant une durée de 18 mois courant à partir des derniers contacts effectifs entre architectes-france et vous ou architectes-france et un membre de la maitrise d'oeuvre en rapport avec ce projet et qui serait en relation avec architectes-france.

Conformément à la loi « informatique et libertés », vous pouvez exercer votre droit d'accès aux données vous concernant et les faire rectifier en contactant : Architectes-france, 23 avenue du Mirail - parc du Mirail - 33370 Artigues-près Bordeaux. Tél. 05.47.74.51.01 - contact@architectes-france.com

Trouvez un architecte pour votre projet

Protection de vos données personnelles

Depuis toujours, architectes-france.com ne transfère aucune donnée personnelle à d'autres acteurs que ceux directement concernés par le projet (architectes, architectes d'intérieur...) et qui appartiennent à son réseau. Nos listes ne sont jamais transmises ou vendues à des partenaires extérieurs, même si ceux-ci appartiennent au domaine de la construction.
Toute modification dans ce domaine ne serait effectuée qu'avec votre consentement.

Je consens à ce que mes données personnelles soient collectées pour permettre à architectes-france de transférer votre projet aux architectes. Seul Architectes-france, ses équipes internes et la maitrise d'oeuvre concernée par le projet y ont accès. Aucune transmission de données à des tiers à l'exclusion de ceux décrits ci dessus n'est réalisée.

Mes données téléphoniques seront uniquement utilisées par Architectes-france.com et les architectes de notre réseau dans le cadre de la qualification et du suivi de mon projet.

Les données sont conservées pendant une durée de 18 mois courant à partir des derniers contacts effectifs entre architectes-france et vous ou architectes-france et un membre de la maitrise d'oeuvre en rapport avec ce projet et qui serait en relation avec architectes-france.

Conformément à la loi « informatique et libertés », vous pouvez exercer votre droit d'accès aux données vous concernant et les faire rectifier en contactant : Architectes-france, 23 avenue du Mirail - parc du Mirail - 33370 Artigues-près Bordeaux. Tél. 05.47.74.51.01 - contact@architectes-france.com