Un projet réalisé par :Gaëlle Saint-Clair
Architecte à Clarensac

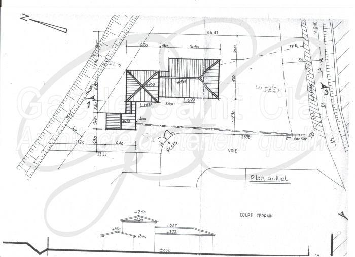
Construction d'une dépendance et d'une piscine avec paysaisme et extension de la villa
Clarensac - 30
Gaëlle Saint-Clair
Accueil
Projets
Construction d'une dépendance et d'une piscine avec paysaisme et extension de la villa
Construction et aménagement d'une dépendance de 40m² avec différents espaces: cuisine, repas, détente, salle d'eau et local technique.
Construction d'une piscine en 10m x 5m avec plage et volet roulant à encorbellement.
Terrassement et rev^tement perméable du terrain.
Construction d'un abri voiture contigüe avec le garage.
Extension du cellier / buanderie attenant à la villa.
-
-
Façade 1
-
Façade 2
-
Plan de masse projeté
Plan actuel